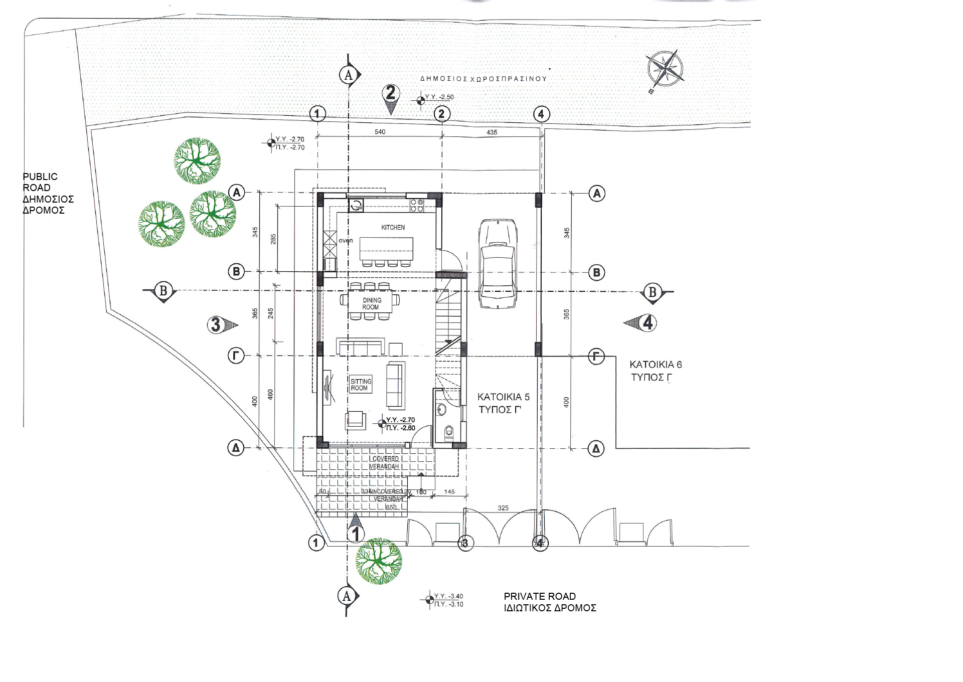
- 141 square meters
- Covered parking spaces: 18 square meters
- Plot size: 297 square meters
- Energy efficient Grade A
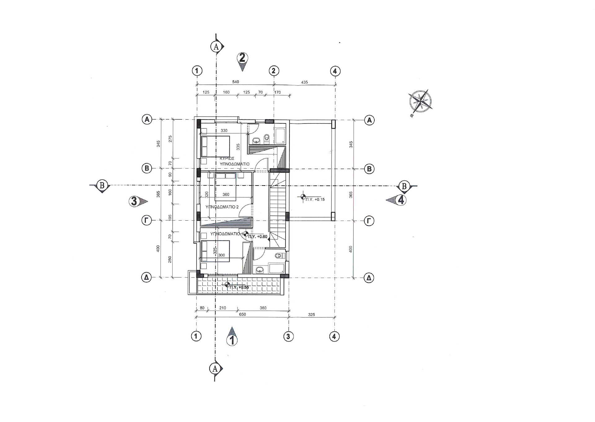
- 3 bedroom house (the one bedroom has ensuite wc/bath)
- 3 wc / 2 baths, which the one is ensuite
- Spacious and modern open-plan living area
- Private Garden
- Double glazed
- Air condition provision
- Solar Panel provision
- Provision for Central Heating
- Provision for electric roller blinds
- Pressurized water system
- Ceiling insulation with 8cm polystyrene/cardboard
- Walls with 25cm brick and 8cm polystyrene
House 5























